
Material Takeoff
Advanced Engineering Group Inc. is a first-rate construction material takeoff estimator that effectively breaks down complex material lists and cost estimation processes. Our engineers employ advanced construction cost estimating software for all ranges of projects, small or large.
If you are a construction company, you will use material takeoff in all your projects. We are the ones who will aid you in reducing your time, effort and money significantly. We guarantee accurate, error-free results for all quantities and ensure a feasible proposal in your favour.
General contractors, subcontractors, developers, homebuilders, remodelling contractors, architects and many others can avail our material takeoff services.
Learn MoreOur Capabilities
Advanced Engineering Group Inc. prides itself on its accurate results and helping clients enhance their productivity and gain good returns.

Material Quantities
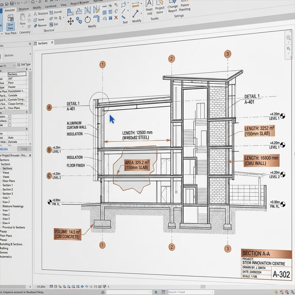
We gain comprehensive information from blueprints, architectural drawings, or project plans and determine the quantitative elements of the project. Our experts create a detailed estimation, covering numerous factors such as simple count and quantification by length, volume, and area. From roofing to concrete, we determine the estimation analysis of various aspects and ease your project worries.

Material Cost
We enlist professionals with expert critical thinking skills, industry knowledge and material trends, good judgement and analytical skills. While assigning material costs to each material can take significant time, our experts reduce time throughout the process with innovative software and accurate planning that leaves no room to re-do it.
The AEGI Advantage
Our decade of experience has honed us with extensive quantitative skills to provide best-in-line material takeoff services. Our self-created database filled with material costs and quantities provides you with numerous benefits.
Our industry experience allows our experts to accurately estimate costs of materials in diverse industries allowing us a precise material takeoff and estimation.
- Organized data
- Latest software
- Quick turnaround time
- Details estimations
- Market competitive rates
- Accurate calculations
Fast Estimations
We manage your project deadlines in the required time frame to save your organization valuable time, ensuring smooth progression.
Affordable Prices
We provide material takeoff services at feasible rates without compromising the quality of our services. Our proposals are budget-optimized.